Rocky Nook House

Gallery
Info
Comments
  • Kingston, Ma. Clients wanted to downsize from a large traditional colonial filled with antiques to a smaller open plan
    modern house close to the water. Priorities included water views, natural light and energy efficiency.
    Constraints included a tiny lot with minimal buildable area, wetlands restrictions, close proximity of
    neighbors. The composition combines box like forms reminiscent of the ubiquitous local lobster pots to
    create a low profile flat roofed house with smaller punched openings to the street, minimal exposure to
    neighbors on either side and expansive unobstructed views of the the water directly behind the house.
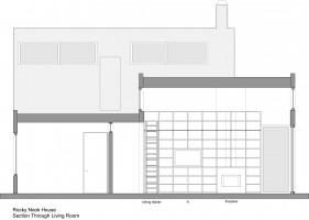
    The design features concrete floors, 10 foot high ceilings throughout with a 14 foot high central living
    area with clerestory windows, large sliding glass panels opening to the deck and bay and a
    monumental bookcase element with fireplace, flat screen tv and rolling ladder incorporated into the
    north wall which counter balances what would be the overwhelming view to the vast expanse of water
    to the east. The walls have recessed reveals at the top and bottom giving them the appearance of
    floating free from the floor and ceiling. A cedar slat rain screen wraps the entire structure which will
    turn silver gray over time in the salt air climate.
    The house is heated and cooled with a geothermal system. It has radiant heat floors and the rainwater
    on the flat roofs is recaptured in a cistern and reused for irrigation of the garden.

  • Leave a Reply